
Rénovation
Avril 2024, Maison V
Ce projet de rénovation porte sur la reconfiguration de plusieurs espaces dans une maison sur trois niveaux tout en respectant le style arty des propriétaires. Au rez-de-chaussée, le salon a été réaménagé avec une bibliothèque en métal et bois, entourant une porte coulissante, pour un espace à la fois pratique et esthétique. Le sous-sol a été réaménagé en studio fonctionnel pour une jeune fille au pair, avec un salon, une cuisine, une chambre et une salle d’eau. Les matériaux terra cotta et l’agencement optimisé créent une atmosphère féminine et chaleureuse. À l’étage, la chambre d’adolescente a été aménagée selon ses souhaits, avec des couleurs bois, blanc et terracotta clair, et un papier peint à motif.

Détails
Agencement
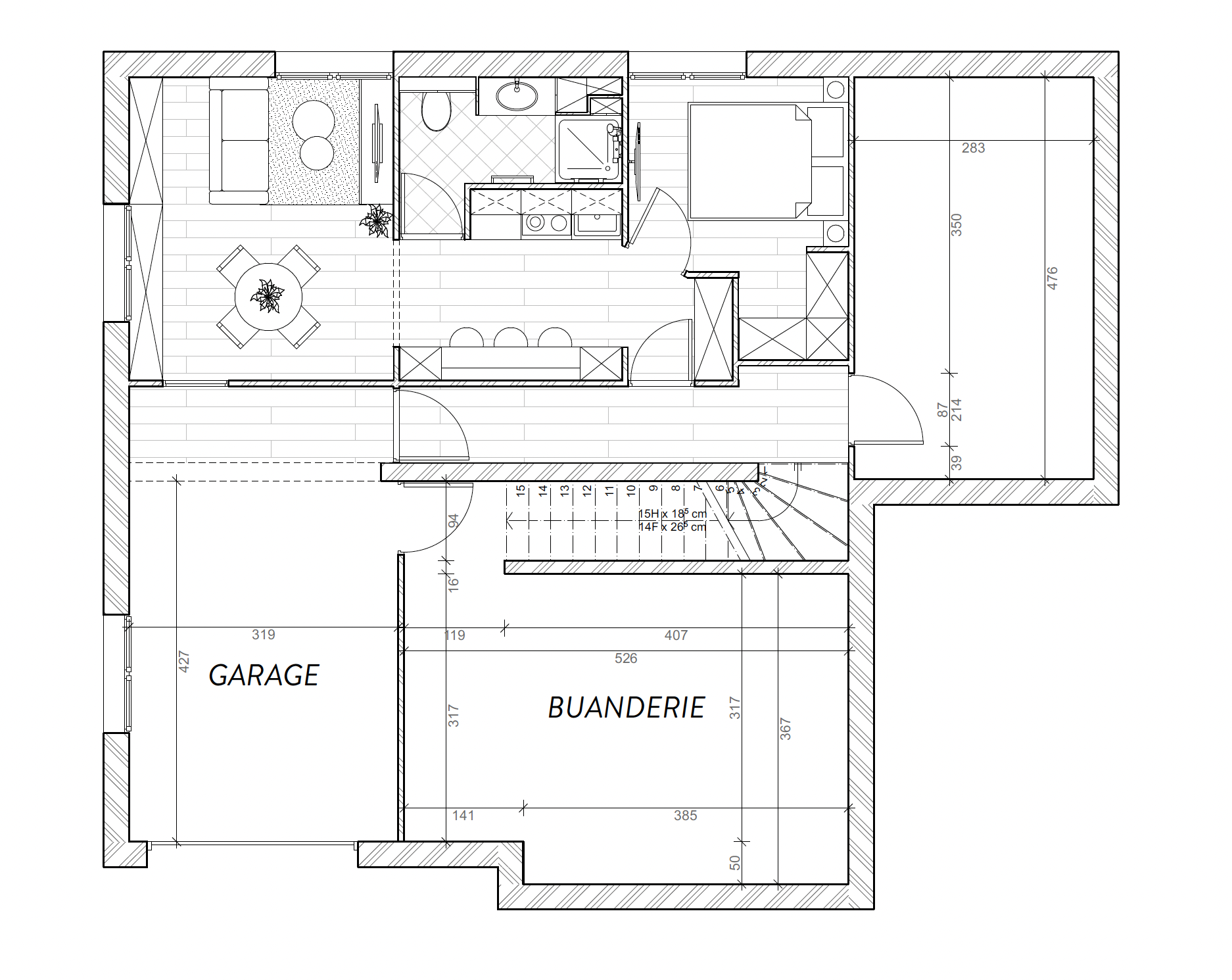
Le véritable défi du projet réside au R-1, où un petit studio indépendant a été conçu pour une jeune fille au pair. L’objectif était de maximiser l’espace tout en offrant un confort optimal et une ambiance chaleureuse.
Matériaux & couleurs
Le choix de matériaux a été dicté par le désir de créer un espace chaleureux et féminin au R-1, avec des tons terracotta et des éléments bois pour une ambiance apaisante.
Choix du mobilier
Le mobilier a été choisi en fonction des préférences des clients, avec une attention particulière aux styles tendances et à l’utilisation pratique des espaces.

