
Rénovation
Avril 2024, appartement B
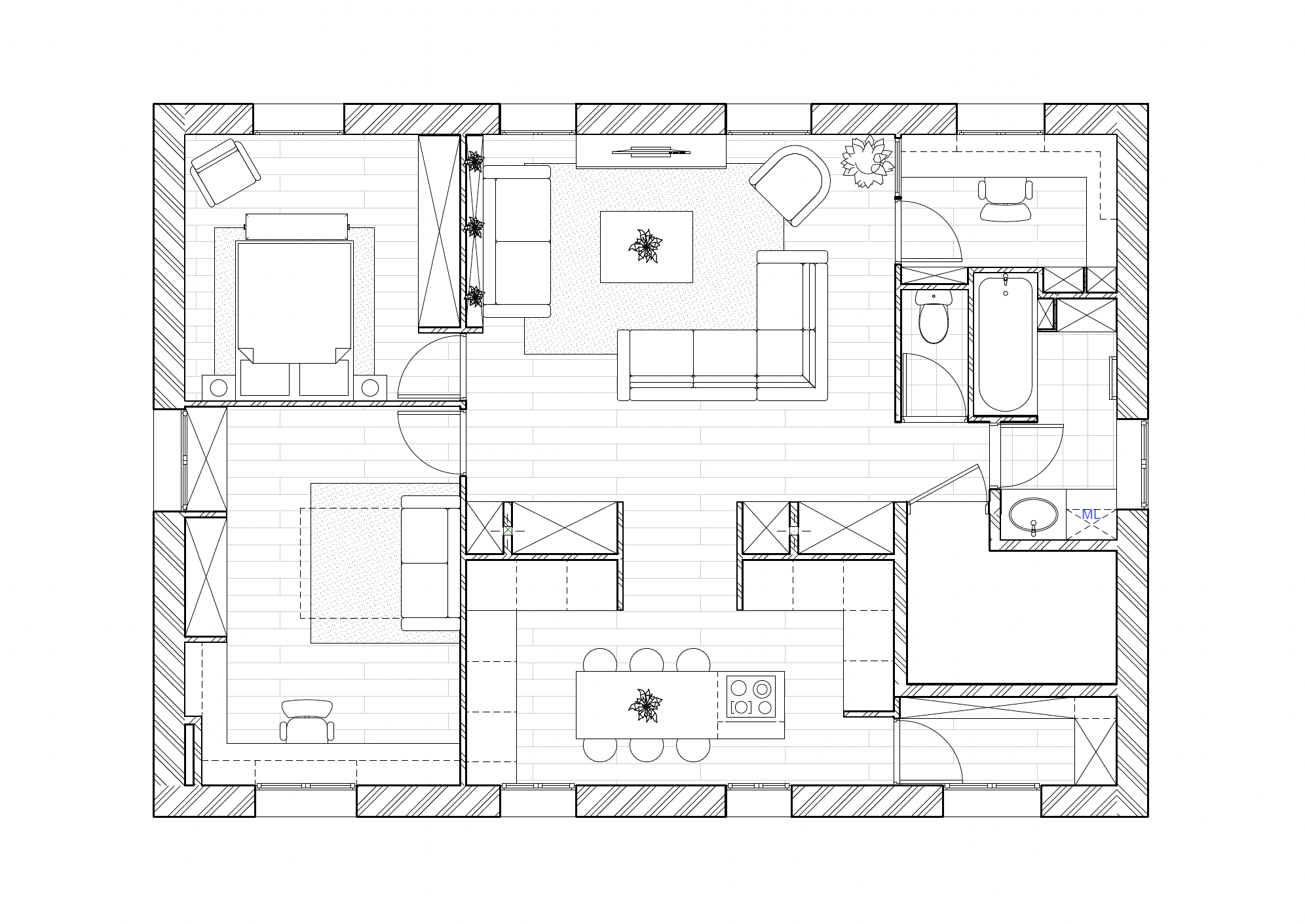
Ce projet de rénovation pour des particuliers a visé à optimiser l’espace tout en respectant un style scandinave moderne et épuré. L’objectif principal était de créer un intérieur à la fois pratique et lumineux, adapté aux besoins d’une famille et au télétravail. L’aménagement a été pensé pour favoriser les espaces de travail, de détente et de convivialité, tout en intégrant des éléments qui garantissent une circulation fluide et un cadre agréable.
Détails
Agencement et fonction
Le projet propose deux agencements : l’un avec un bureau intégré à la chambre de yoga et un dressing, l’autre avec deux bureaux séparés. La cuisine, semi-cachée avec accès au cellier, conserve un espace de vie dégagé. Un îlot central avec table intégrée est présent dans les deux configurations, favorisant les repas conviviaux.
Choix des matériaux
Les matériaux ont été choisis pour leur simplicité et leur luminosité. La cuisine mélange pierre beige et marron en hauteur avec un soubassement blanc, tandis que le mobilier en bois clair et blanc crée une ambiance épurée. Les bureaux sont peints en gris bleu, ajoutant une touche de couleur subtile.
Ambiance et décoration
Le style scandinave se distingue par des lignes épurées, des matériaux naturels et des couleurs douces. Les moulures légères aux plafonds ajoutent une touche de sophistication discrète. Chaque espace allie confort, esthétique et fonctionnalité pour le télétravail, les loisirs et la détente.

